Description
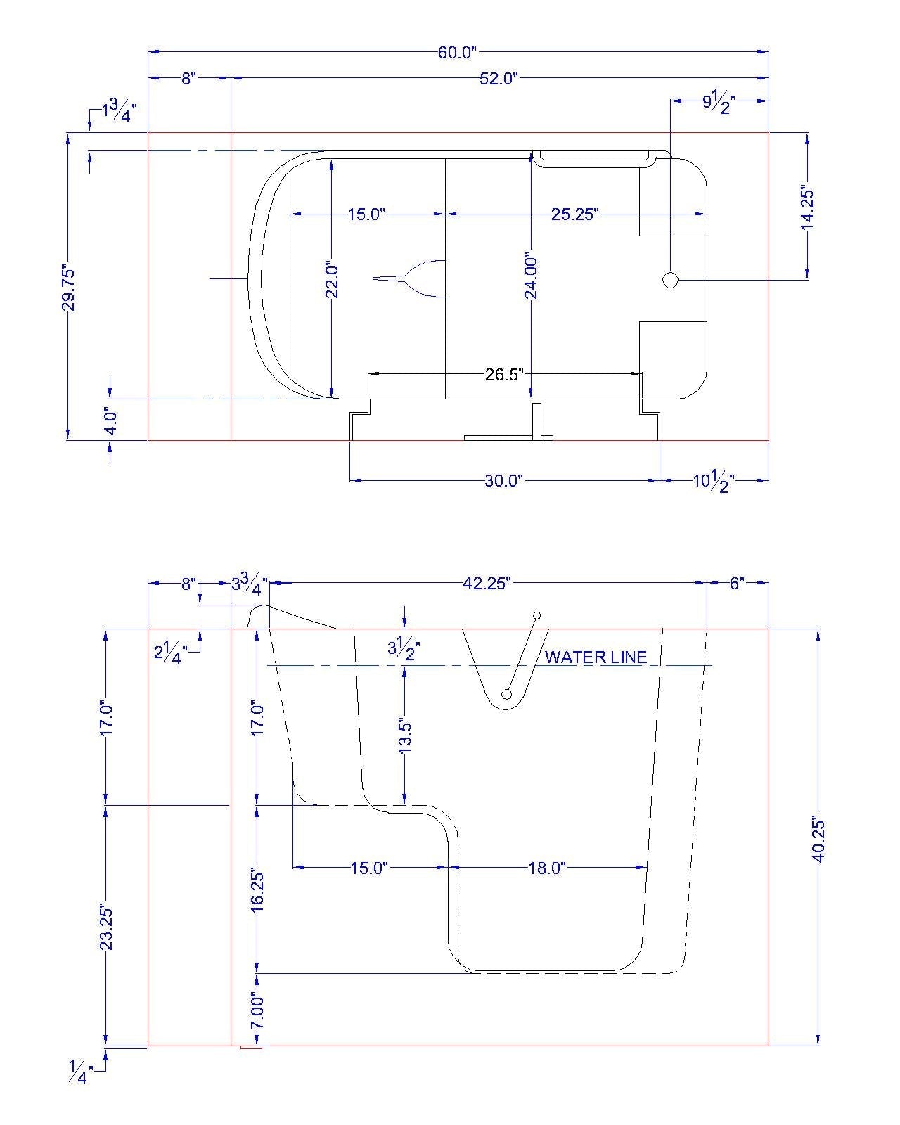
The Mobility Bathworks Transfer Tub 3052 from our ELITE Series provides a luxury spa experience from the comfort of your own home. Boasting a 41″ high tub basin, the Transfer 3052 allows for deeper upper body water immersion while maintaining a compact footprint for almost any bathtub or shower space. Its overall size and 22″ seat make the Transfer 3052 the perfect size for narrow, 60″ bathrooms while being large enough to accommodate individuals between 120-250 Ibs.
Key Features:
- Marine-Grade Fiberglass & Resin Composite Tub Shell
- High-Gloss, Triple-Coated Gelcoat Finish
- One-Piece, Stainless-Steel Support Frame
- 6 Adjustable Leveling Legs
- Low, 6.8″ Door Threshold
- Ergonomic, Curved Door Handle
- Water-Tight Door Seal
- 16.25″ High, ADA-Compliant, Contoured Seat
- Interior Safety Grab Bar
- Deck-Mounted, U-Shaped Grab Bar
- Non-Slip, Textured Floor
- Integrated Door Drain
- Front Access Maintenance Panels
- Color-Matched Extension Kit to Fill to 60″
- Flangeless Design
Specifications:
Tub Dimensions: 30″W x 52″L x 41″H
Tub Weight: 270 Ibs
Crated Dimensions 31″W x 53″L x 50″H
Seat Dimensions: 16.25″H x 22″W
Water Capacity Occupied: 58 Gallons
Door Width: 30″
Door / Drain Orientation: Left-Hand or Right Hand
Door Swing: Outward-Swinging
Authorized Dealers Of Mbtubs.














There are no reviews yet.